東京都江戸川区南小岩8丁目4-26
総武・中央緩行線「小岩」駅 徒歩6分




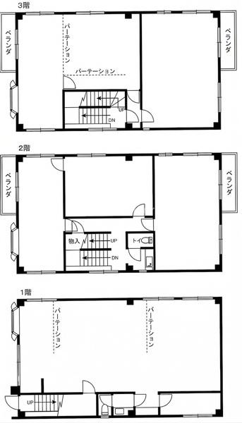
3階

3階

屋上
※現況と相違ある場合、現況を優先します。
東京都江戸川区南小岩8丁目4-26
総武・中央緩行線「小岩」駅 徒歩6分
| 物件種目 | ビル |
|---|---|
| 管理費等 | - |
| 敷金/礼金 | 3ヶ月/1ヶ月 |
| 敷引 | 1ヶ月 |
| 更新料 | 1ヶ月(新賃料)(税込) |
| 築年月 | 1988年7月 |
| 建物構造 | 鉄骨造 |
| 階建 | 3階建 |
| 面積 | 236.91m2(71.66坪) |
| 向き | - |
| 風呂 | - |
| トイレ | - |
| 現況 | 空き |
|---|---|
| 駐車場 |
無 |
| 接道状況 | - |
| 損害保険 | 要(3年) |
| 契約期間 | 3年 |
| クレジット決済 |
- |
| 備考 | 保証料 賃料等100% 継続保証料 賃料等10%/年要火災保険加入更新料 新賃料1ヶ月解約時、敷金1ヶ月償却契約1年以内の解約の場合、短期解約違約金1ヵ月更新事務手数料 新賃料の0.5ヶ月+消費税 |
| その他費用 | - |
| 取引態様 | 仲介 |
| 引渡時期 | 相談 |
| 問い合せ番号 | 058201-11487c |
| 物件更新日 | 2026年5月20日 |
2026年5月27日
駅 小岩駅(JR総武本線)(400m)

スーパー まいばすけっと南小岩8丁目店(150m)

ドラッグストア くすりの福太郎小岩店(300m)

コンビニ セブンイレブン南小岩7丁目店(220m)

ATMお酒たばこマルチコピー機セブンスポット(無料WiFi)
銀行 りそな銀行小岩支店(280m)

銀行 みずほ銀行小岩支店(500m)

郵便局 小岩駅前郵便局(350m)

(郵便・貯金・為替・振替・生命保険・ATM)
商店街 昭和通り商店街(1m)

下町風情漂うレトロな懐かしい商店街
商店街 フラワー通り商店街(350m)

JR小岩駅南口から約1Km続く屋根付きの商店街
お問い合わせ番号をお伝えいただくとスムーズです。
この物件のお問い合わせ番号は【058201-11487c】です。